rejestracja  |  przypomnij hasło

Ilość ogłoszeń: 12 109   |   Dodanych dzisiaj: 555

3-pokojowe mieszkanie 48,27m | Budz ...

3-pokojowe mieszkanie 48,27m | Budz ...
Mieszkanie 1E/4a o powierzchni 48,27 m2 |balkon | Rzeszów, ul. Budziwojska 3 Cena: 446 497,50 zł *do ceny należy doliczyć opłatę za miejsce postojowe w cenie 19 500,00 za miejsc ...

Luksusowy Dom w cent ...

CENA:
3580000


Zobacz

Szeregówka 83,86 m2 ...

CENA:
679266


Zobacz

Jeep Grand Cherokee ...

CENA:
103600


Zobacz
Ogłoszenie # 54950989
Dane podstawowe
kategoria :
Nieruchomości > Sprzedam
tytuł :
Nowe mieszkanie - 3 pokoje -Drabinianka
data dodania :
2025-10-21 11:29 - ważne jeszcze 2 dni do : 2025-10-24
wyświetleń :
100 razy
cena :
604656 PLN
Treść ogłoszenia
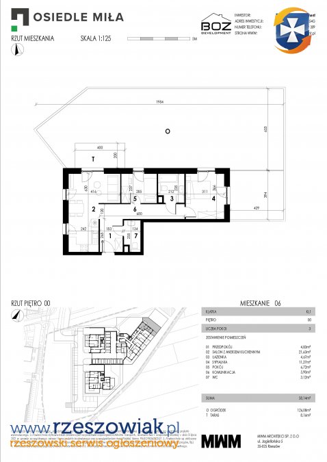
Strażacka 54G to inwestycja z potencjałem realizowana przez BOZ Development, sprawdzonego lokalnego dewelopera.

Przedstawiamy 3-pokojowe mieszkanie z ogródkiem, na parterze w inwestycji Strażacka 54G. Mieszkanie o powierzchni 58,14 m2˛ to idealna propozycja dla rodziny, która ceni komfort, spokój i przestronność. Mieszkanie składa się z przestronnego salonu z aneksem kuchennym, sypialni, pokoju, łazienki , dodatkowego WC oraz przedpokoju. Dodatkowo mieszkanie posiada ogródek o powierzchni 126,08 m2 oraz taras o powierzchni 8,16 m2, które zapewnią komfort wypoczynku na świeżym powietrzu.

Układ mieszkania:
- Przedpokój
- Salon z aneksem kuchennym
- Pokój
- Sypialnia
- Łazienka
- WC
- Ogródek - 126,08 m2
- Taras - 8,16 m2

Zalety mieszkania:

- Balkon i ogródek -przestrzeń do wypoczynku
- Doskonała lokalizacja blisko przystanków MPK, sklepów i szkół
- Miejsce postojowe w garażu podziemnym - obowiązek zakupu
- Dodatkowo komórka lokatorska – szczegóły w biurze sprzedaży
- 0% prowizji, 0% PCC
- Zakończenie inwestycji i oddanie kluczy - II kw. 2026 r.

W okolicy inwestycji znajdziesz:
-Supermarket - 10 min pieszo 
-Szkoła podstawowa - 3 min autem 
-Park i tereny spacerowe nad Wisłokiem - kilka minut rowerem
-Centrum Handlowe Plaza, kino, siłownia - 12 minut samochodem
-Park Trampolin - 3 min autem
-Restauracje i kawiarnie - w promieniu 1 km
-Lokale handlowe usługowe (kosmetyczka, fryzjer, trener personalny) - ok 500 metrów 

Oferta bezpośrednio od dewelopera.
Powyższa oferta ma charakter informacyjny i nie stanowi oferty handlowej w rozumieniu art. 66 § 1 Kodeksu Cywilnego.

Kontakt:
Strona internetowa: boz-development.pl
Adres inwestycji: ul. Strażacka 54G, Rzeszów
Dane dodatkowe
powierzchnia :
58.14 m2
cena za m2 :
10 400 zl
piętro :
0 / 6
pokoje :
3
budynek :
blok cegla/pustak
stan :
developerski
polożenie :
Rzeszów, Drabinianka, Strażacka 54 G 54 G
Zdjęcia
Dane kontaktowe
telefon :
17 xxx-xxx     « pokaż pełny nr telefonu
Twój e-mail :
wiadomość :
Wyrażam zgodę na przetwarzanie moich danych (podany e-mail, odczytany adres IP mojego urządzenia oraz załącznik) podanych w powyższym formularzu kontaktowym przez administratora danych serwisu rzeszowiak.pl. Dane te wraz z zapytaniem zostaną przekazane do osoby umieszczającej ogłoszenie, w celu umożliwienia odpowiedzi. Pełny regulamin dostępny tutaj
zamknij
Zamknij