rejestracja  |  przypomnij hasło

Ilość ogłoszeń: 11 646   |   Dodanych dzisiaj: 352

CYKLINOWANIE

CYKLINOWANIE
CYKLINOWANIE wszelkiego rodzaju parkietów, desek warstwowych, podłóg, mozaiki, tarasów, surowych desek, schodów itp. Nasze usługi wykonujemy kompleksowo, zgodnie ze sztuką i ustalo ...

Dom 5-pokojowy z gar ...

CENA:
1350000


Zobacz
Ogłoszenie # 54955339
Dane podstawowe
kategoria :
Nieruchomości > Mam do wynajęcia
tytuł :
Wynajmę budynek biurowy z salą sprzedaży 288 m2
data dodania :
2025-10-25 13:50 - ważne jeszcze 30 dni do : 2025-11-25
wyświetleń :
19 razy
cena :
12100 PLN
Treść ogłoszenia
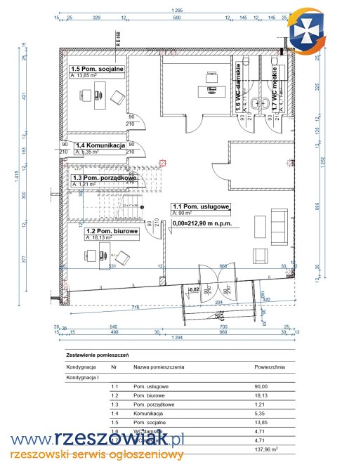
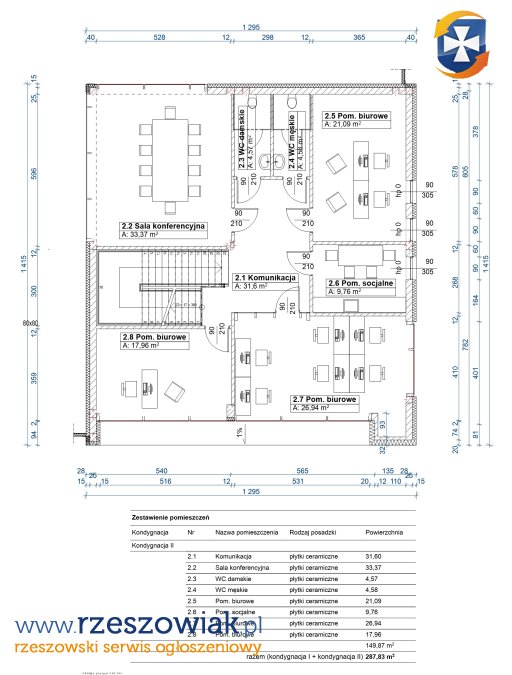
Wynajmę reprezentacyjny budynek biurowy z salą sprzedaży w Tyczynie ul. Laurowa 23 . Do budynku przynależy duży parking. Istnieje możliwość adaptacji pomieszczeń pod potrzeby klienta.Budynek ogrzewany jest gazem. W każdym pomieszczeniu znajduje się klimatyzacja. Obecnie w pomieszczeniach są wykładziny oraz płytki . Istnieje możliwość zawieszenia reklamy/szyldu na budynku.Czynsz wynajmu to kwota 12 100,00 zł netto plus opłaty za gaz, wodę i prąd według zużycia. Umowa na minimum rok czasu. Jednomiesięczna kaucja.
Dane dodatkowe
powierzchnia :
288 m2
polożenie :
Tyczyn
Zdjęcia
Dane kontaktowe
telefon :
500 xxx-xxx     « pokaż pełny nr telefonu
Twój e-mail :
wiadomość :
Wyrażam zgodę na przetwarzanie moich danych (podany e-mail, odczytany adres IP mojego urządzenia oraz załącznik) podanych w powyższym formularzu kontaktowym przez administratora danych serwisu rzeszowiak.pl. Dane te wraz z zapytaniem zostaną przekazane do osoby umieszczającej ogłoszenie, w celu umożliwienia odpowiedzi. Pełny regulamin dostępny tutaj
Inne ogłoszenia [1]
Poniżej znajduje się lista innych ogłoszeń użytkownika :
zamknij
Zamknij