Rozpoczęta budowa 14,59ar.Baligród Bieszczady
Super-nieruchomosci.com
Tylko u nas Oferta na wyłączność
Województwo Podkarpackie
Powiat Leski
Gmina Baligród
Miejscowość Baligród
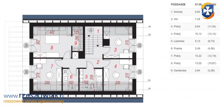
Pozwolenie na budowę budynku mieszkalnego z godnie z projektem â Dom w Szyszkowcachâ
Na działce zostały zrobione fundamenty, studnia głębinowa
Media
- prąd na działce
- woda na działce (studnia)
- kanalizacja na działce
- wymiary 38m x 41m
Dojazd drogą gminną
Cena 250 000zł do negocjacji
Osoba prowadząca: Rafał Ostyński
tel. 731-595-295
Licencjonowane Biuro Nieruchomości
Rzeszów, ul. Dąbrowskiego 67
tel. 17 710 50 01
e-mail: [użyj poniższego formularza kontaktowego]
www.super-nieruchomosci.com














ogłoszenie













