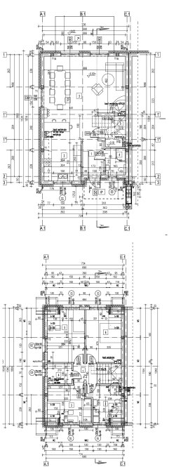
Opis budynku:
- powierzchnia użytkowa: 113m2 + możliwość adaptacji strychu 27m2 (wejście klatką schodową)
- powierzchnia działki: 417m2 + współudział w drodze dojazdowej
- funkcjonalny układ pomieszczeń
- ocieplony budynek styropianem o grubości 20cm, wykonana elewacja tynkiem sylikonowym,
- pokrycie blacho-dachówką
- działka ogrodzona z 3-stron
- ściany z betonu komórkowego
Cechy wyróżniające:
- okna PCV 3-szybowe w standardzie PREMIUM PLUS w dwóch kolorach (wewnątrz białe, zewnątrz w kolorze winchester), wykonany szczelny montaż okien wraz z ciepłą podwaliną EPS podokienną
- drzwi wejściowe PASSIVE 4-szybowe wraz z ciepłą podwaliną EPS oraz membraną EPDM pod progami
- nowoczesne rolety zewnętrze z modułem wifi
- budynek dostosowany do wykonania rekuperacji
- budynek dostosowany do alternatywnego źródło ciepła - kominka
- zbiornik na wody opadowe wraz z odwodnieniem
- lokalizacja między domami jednorodzinnymi
- szybki dojazd do centrum miasta
- przewidziana ilość miejsc parkingowych - 4 miejsca
Lokalizacja:
- Rzeszów, ul. Myśliwska
w pobliżu:
- sklepy spożywcze
- szkoła podstawowa, przedszkole, żłobek
- przystanek autobusowy MPK
- przystanek szynobusu
Media:
wykonane przyłącza: wodociąg miejski, kanalizacja sanitarna miejsca, prąd, gazociąg, światłowód, zbiornik na wody opadowe wraz z odwodnieniem
Zapraszam do kontaktu i obejrzenia nieruchomości
Józef
tel. 606 183 200














ogłoszenie










