Ogłoszenie prywatne, proszę o nie dzwonienie pośredników
Na sprzedaż: 4-pokojowe, nowe mieszkanie 62,95 m² â ul. Architektów, Rzeszów
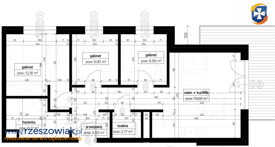
Na sprzedaż nowoczesne 4-pokojowe mieszkanie o powierzchni 62,95 m², położone na I piętrze w bloku z windą, przy ul. Architektów w Rzeszowie.
Cena: 670 000 zł
W cenie: miejsce postojowe
Opis nieruchomości:
powierzchnia: 62,95 m²
4 niezależne pokoje
piętro: 1
blok z windą
mieszkanie będzie wykończone â płytki w łazience, pomalowanie, położone panele itd
funkcjonalny, nowoczesny układ pomieszczeń
przestronny salon z aneksem kuchennym
łazienka + oddzielne WC
balkon
Atuty mieszkania:
miejsce postojowe przynależne do mieszkania
jasne i ustawne wnętrza
nowoczesne wykończenie (jak na wizualizacji)
idealne dla rodziny, pary lub jako inwestycja
spokojna, rozwijająca się okolica
Lokalizacja:
ul. Architektów â jedna z najbardziej pożądanych lokalizacji w Rzeszowie - blisko Politechniki Rzeszowskiej
w pobliżu sklepy, szkoły, przedszkola, tereny zielone
szybki dojazd do centrum miasta
Mieszkanie idealne dla osób szukających komfortu, nowoczesnego standardu i dobrej lokalizacji.










ogłoszenie











