Na sprzedaż dom w stanie surowym otwartym. W trakcie budowy.
Na tym etapie możliwe są zmiany w projekcie zgodnie z wytycznymi klienta.
LOKALIZACJA:
Rzeszów ul. Starowiejska 55f (następna działka)
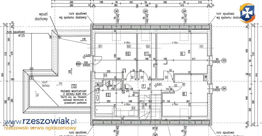
Dom o pow. 169,16 m2 na działce 11 ar.
Zakres robót (stan surowy otwarty):
â Fundamenty i ich izolacja
â Ściany zewnętrzne i wewnętrzne z betonu komórkowego
â Schody
â Strop
â Więźba dachowa
â Pokrycie dachu blachodachówką
â Komin
â Rynny
â Doprowadzone wszystkie media (prąd, woda, kanalizacja, gaz, internet)
Istnieje możliwość doprowadzenia budynku do stanu zamkniętego bądź deweloperskiego (według ustaleń z klientem).
Piękna, widokowa działka o pow. 11 ar. Dojazd drogą utwardzoną. Cudowne widoki, dużo zieleni i spokój.
Szybki dojazdu do centrum miasta (zaledwie 5 minut jazdy samochodem), jak również do terenów rekreacyjnych nad Wisłokiem. Tylko 2 km dalej znajduje się Rezerwat Przyrody Lisia Góra oraz wypożyczalnia sprzętu wodnego (kajaki, rowerki), place zabaw dla dzieci, pole do mini golfa, wiaty grillowe.
â Południowa część miasta, boczna Podkarpackiej
â Szkoła Podstawowa 1,2 km
â Sklep spożywczy 500 m
â Kościół 1 km
â Lidl na Podkarpackiej 3 km
â Politechnika Rzeszowska 3 km
â WSK Rzeszów 2 km (5 min samochodem!)
Inwestor: Bracia Ożóg Deweloper Sp zoo
Zapraszamy do zapoznania się z ofertą.
Zapraszamy do współpracy również biura nieruchomości.
Kontakt tel: 608 096 863














ogłoszenie














