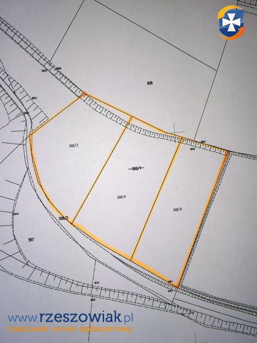
Biuro Nieruchomości OMEGA przedstawia na sprzedaż trzy działki o powierzchni ok. 16 ar każda, tworzące atrakcyjny kompleks o łącznej powierzchni ok. 49 ar, położone w miejscowości Babica, gmina Czudec.
Numery działek: 566/3, 566/4, 566/5.
Działki są widokowe, usytuowane na południowym stoku, co zapewnia doskonałe nasłonecznienie oraz piękną panoramę.
Każda z działek posiada wydane warunki zabudowy na budowę domu jednorodzinnego. Dojazd do nieruchomości odbywa się drogą polną.
Cena: 150 000 zł za działkę o powierzchni 16 ar.
Całość 450 000 zł.
Zapraszamy na prezentację nieruchomości! Szczegółowe informacje dostępne są w siedzibie biura nieruchomości Omega w Rzeszowie, ul. Asnyka 10, oraz pod numerem telefonu 605 965 761.











ogłoszenie















